Galleria Aarni on ajankohtaista nykytaidetta esittelevä, yhdistyspohjainen näyttelytila vilkkaan kauppakeskuksen yhteydessä.
Syyskuusta 2025 alkaen Uusi Galleria Aarni on Espoon Leppävaarassa, kauppakeskus Sellossa, Viaporintorilla. Löydät meidät kirjaston ja Marian leipomomyymälän naapurista.
Galleria Aarnin uusi osoite on Leppävaarankatu 9, 02600 Espoo.
Galleria Aarni näyttelyhaku 2027
Galleria Aarni on ajankohtaista nykytaidetta esittelevä, yhdistyspohjainen näyttelytila vilkkaan kauppakeskuksen kulttuuriaukiolla. Naapureinamme on vilkas Sellon Kirjasto, kulttuurinäyttämö Sellosali, musiikkiopisto Juvenalia sekä vastapäätä Finnkino-leffateatteri. Uusiin tiloihin muuttaneen Galleria Aarnin näyttelyihin piipahtaminen on helppoa.
Galleria Aarnin näyttelytarjonta on monipuolista. Järjestämme galleriassa myös tapahtumia, jotka ylittävät taiteiden väliset rajat. Meille ovat kaikki tervetulleita.
Näyttelyaikojen haku käsittää koko vuoden 2027. Myös ryhmänä on mahdollista hakea näyttelytilaa.
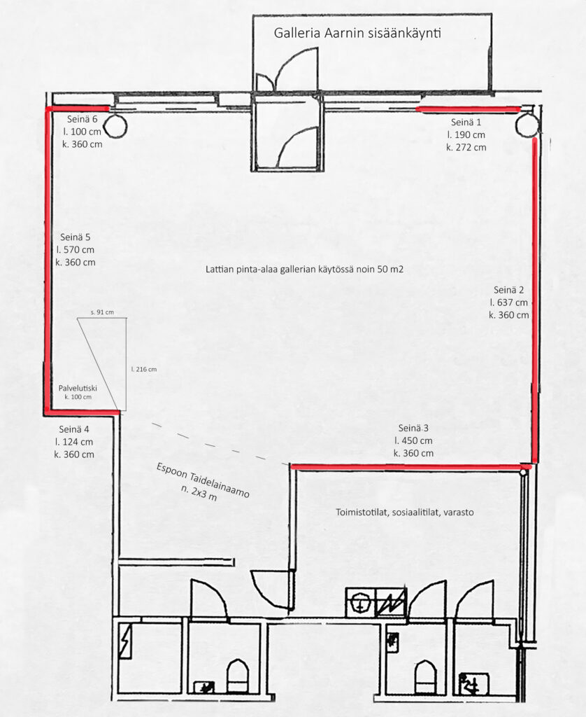
Galleriassa on lattiapintaa noin 52 m2, ripustusmetrejä on noin 22 m. Galleriatila on korkea, huonekorkeus on 4 metriä. Ripustusseinien korkeus on 360 cm. Tila on avara ja valoisa. Sisään tulee kauniisti luonnonvaloa pohjoisesta. Tilaa ei saa pimennettyä.
Hakemus on yksi PDF-tiedosto (max 8 MB) sisältäen
1. Kirjallinen tiivis näyttelysuunnitelma, max A4 puolikas
2. Teoskuvia 3-6 kpl teostietoineen, joista ainakin yksi on tilallinen kuva.
3. Ansioluettelo
4.Toive näyttelyn ajankohdasta.
Video/performanssiteoksista linkki teoksiin, esim. linkki Vimeo/YouTube ja mahdolliset salasanat.
Nimeä hakemuksesi:
Aarni-Näyttelyhaku-2027-TaiteilijanNimi
Lähetä hakemus sähköpostitse: aarni@espoonkuvataiteilijat.fi
Sähköpostin otsikoksi
”Näyttelyhaku 2027- Taiteilijan Nimi”
Hakemukset sähköpostilla (yksi PDF) viimeistään 31.10.2025 klo 23.59. Näyttelymaksut vuonna 2025 ovat olleet koko tilasta 1200 €. Pyrimme alentamaan näyttelymaksuja hakemalla erillisrahoitusta. Galleria Aarni on vilkas, niin sateisella kuin helteisenäkin päivänä. Gallerian vierasmäärät vaihtelevat, 25-85 henkilöä/päivä.
Alla kuvia uudesta galleriasta, esillä Nina Granlundin lyijykynäpiirrosnäyttely syyskuussa 2025.
Linkki pohjapiirrokseen pdf.









